Zaloguj się
Szczegóły
Parametry
Znajdź podobne produkty
Marka
Symbol
PH800480T029-IFA01
Matryca

TFT
Przekątna ekranu (cal)

7
Standard rozdzielczości

WVGA
Rozdzielczość (px)

800 x 480
Format obrazu
5:3
Typ panelu dotykowego

Brak
Jasność w cd/m2

500
Kontroler (IC)

ILI6137A + ILI5960
Interfejs wideo

RGB 24-bit
SPI
Kąty widzenia
60/60/60/60
Kierunek widzenia
6H
Temperatura pracy

-20...+70°C
Napięcie

3,3V
Powertip PH800480T029-IFA01
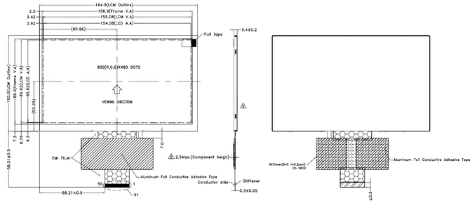
Wyświetlacz TFT stworzony przez Powertip. Urządzenie o rozdzielczości 800 x 480 WVGA, przekątnej 7", z interfejsem Parallel RGB oraz SPI. Jasność: 500. Zakres temperatury pracy -20...+70°C.
Zdjęcie poglądowe. Aby zobaczyć produkt, sprawdź rysunek umieszczony w galerii, bądź pobierz dokumentację.



